Er komt een nieuw dorpshuis!
In 2023 heeft de gemeenteraad besloten dat er een nieuw dorpshuis / multifunctionele accommodatie (MFA) zal worden gebouwd. Dit nieuwbouw project wordt aangestuurd door een projectgroep die bestaat uit vertegenwoordigers van het dorp, de gemeente en externe experts.
Aan de hand van de burgerparticipatie avonden is er een wensenlijst van het dorp samengesteld. Architecten die wilden inschrijven maakten een plan dat hierop is gebaseerd. Uiteindelijk is NOAHH architecten de partij geworden die het gebouw gaat ontwerpen.
Als het ontwerp definitief is kan medio 2026 de aanvraag voor bouwvergunning worden ingediend en begint de zoektocht naar een aannemer. Ook hier moet weer een aanbestedingstraject worden doorlopen. De planning is dat er dan begin 2027 kan worden gestart met de bouw, zodat we begin 2028 kunnen verhuizen naar onze nieuwe accommodatie.
Op 25 maart was er een informatie avond, tijdens deze avond werden onderstaande tekeningen en impressions getoond.
(let op, een en ander is de tussenstand van het voorlopige ontwerp waar we nu nog mee bezig zijn)
Vooraanzicht met links Albert Kleijntje, midden horeca en vergaderen en rechts de grote zaal (voor sporten en evenementen):

Situatieschets, aan de onderkant van de tekening loopt de Noordlangeweg:

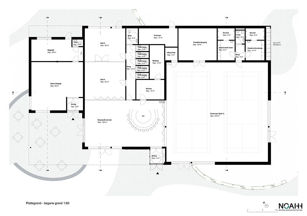
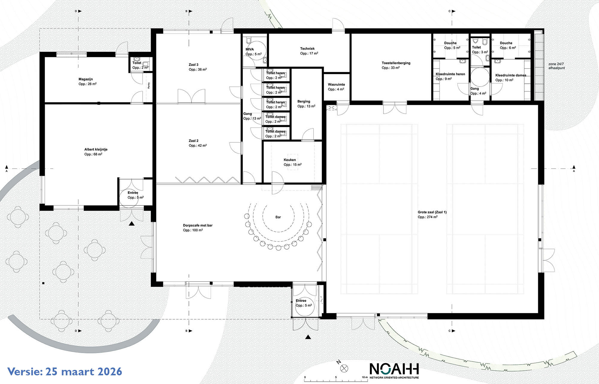
Plattegrond van het gebouw (versie 25 maart 2026):

Zicht op het dorpsplein met de overkapping voor Albert Kleijntje en het café


Een blik in het café gedeelte en daar achter de grote zaal (deze doorgang kan worden afgesloten met een schuifwand).
Aan de linkerkant zie je nog net de doorgang naar zalen 2 en 3 (voor vergaderingen en cursussen) :

Zicht op een deel van zaal 1 (sporten en evenementen) en daar achter het café :

Dorpswinkel Albert Kleijntje:


Kijk voor meer (uitgebreide) informatie op
www.noord-beveland.nl/mfa-kats